Bliss @ Kovan

4 Simon Lane ,546054

x 1

Kovan

PSF: $1,475 est.

Description

Bliss@Kovan is a freehold apartment located at 4, Simon Lane, 546054 in District 19 Serangoon Garden. Bliss@Kovan is close to Kovan MRT Station and Hougang MRT Station. Schools close to Bliss@Kovan include, Xinghua Primary School and Yuying Secondary School. Facilities at Bliss @ Kovan include lap Pool, Children's Play Pool, Hydro Massage, Spa Pool and Pavilion, Outdoor Shower, Pool Deck, Communal Male and Female Changing Rooms with Shower Facilities, Cascading Water Entrance Court, Drop-Off, Guard House, Entrance Foyer, Water Feature, Secondary Pedestrian Access, Biological Pond, Vertical Green Wall and Garden Walk, Rain Garden with Integrated Bloswale, Signature Tree, Clubhouse, Gym, Dining Pavilion with Barbeque and Kitchen Facilities and Children's Playground.

Key Features
Residents at Bliss@Kovan can get to nearby supermarkets or shopping mall within the area for an array of amenities such as grocery and retail shopping, banks, eateries and more. Bliss@Kovan is near to Cold Storage Heartland Mall and Cold Storage Hougang. It is also close to ICB Shopping Centre and Upper Serangoon Shopping Centre. Vehicle owners can take Kallang Paya Lebar Expressway and Central Expressway to get to the business hub or shopping district in the city.

Read More

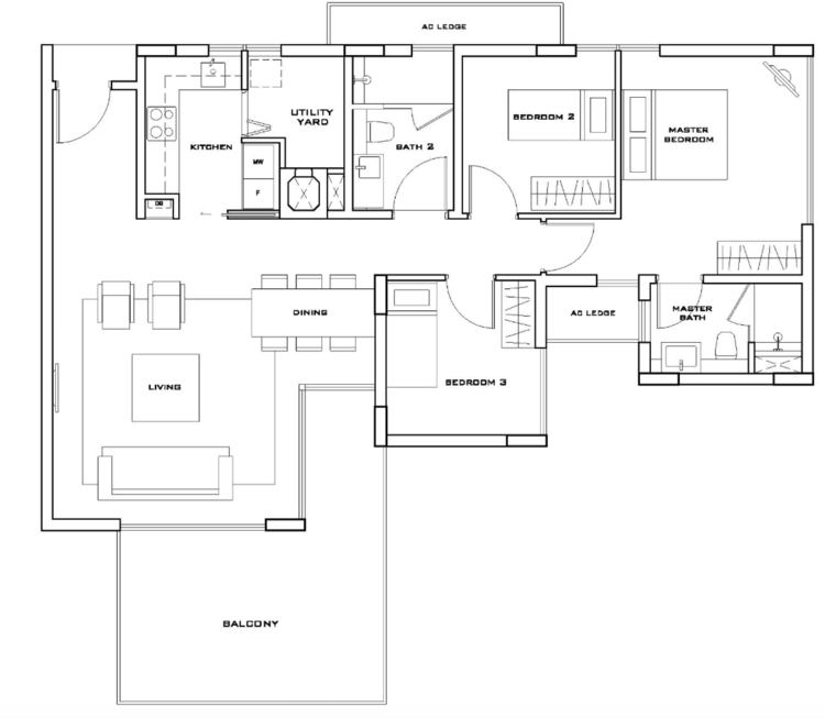
Floor Plan

Bedroom Number

  • 1
  • 2
  • 3
  • 4+

Transactions

Price Trend
  • 3 Months
  • 6 Months
  • 1 Year
  • 2 Years

Nearby Condos